для Москвы
8 (925) 024-34-00____8 (925) 178-80-23
rusdersk@mail.ru
О компании
Проектирование
Технологии
Фундамент
Контакты
Дома из профилированного бруса, каркаснощитовые дома
-
проекты
-
фото
Одноэтажные дома
-
проекты
-
фото
Бани
-
проекты
-
фото
Архив. Дома и бани
-
проекты
-
фото
Поиск
Приезжайте посмотреть
02.11.2025
Закончилось строительство каркасного дома по типовому проекта "Сказка" 7,5х8м. Место строительства., Московская область г. Ступино ТСН "Антей"
27.10.2025
Закончилось строительство каркасного дома 8х8м. с террасой 4х2,5м. Место строительства Подольский район., с/о Лаговский.
07.09.2025
Закончилось строительство каркасного дома под сайдинг 7х7м. Место строительства Московская обл, г. Домодедово, село Введенское владение.
15.08.2025
Закончилось строительство бытовки 2,5х5м. Место строительства Клинский район., д. Покровка.
01.06.2025
Закончилось строительство одноэтажного каркасного дома 8х11м. по проекту "Сказка". Место строительства Нагинский район., д. Кабаново.
03.04.2025
Закончилось строительство каркасного дома 7,5х12м. с террасой, по проекту "Сказка" Место строительства Тульская обл, Заокский р-он., д. Гатницы.
23.01.2025
Закончилось строительство одноэтажного каркасного дома 6х8. с террасой 2,5х5м. Место строительства., Новая Москва район Воронова, д.Богоявление.
все новости
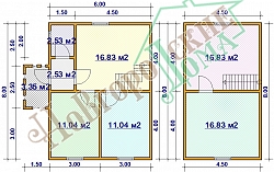
Д-69 проект дома 6х8м. с крыльцом 1.5х2.5м.
←
вернуться
Площадь:
87.75 м
2
Размер:
6х8м. м
Силовая конструкция из бруса 100 на 150 мм:
0,00 руб.
по запросу руб.
(экономия: 0,00 руб.)
Cиловая конструкция из бруса 150 на 150 мм:
0,00 руб.
по запросу руб.
(экономия: 0,00 руб.)
Под ключ из бруса 100 на 150 мм:
0,00 руб.
по запросу руб.
(экономия: 0,00 руб.)
Под ключ из бруса 150 на 150 мм:
0,00 руб.
по запросу руб.
(экономия: 0,00 руб.)
Архив. Дома и бани
→
←
предыдущий проект
заказать строительство
следующий проект
→
Сборка только на деревянные нагеля!
Зарезка углов только коренной шип (теплый угол)!
для Москвы
8 (925) 024-34-00____8 (925) 178-80-23
© 2010-2024 Все права принадлежат компании "Новгородские дома"
ИП Бойцов Д.А. ИНН 774332973340
Вся информация, размещенная на сайте, является охраняемой в соответствии с Российским и международным законодательством о правах на результаты интеллектуальной деятельности, включая авторское право.
Использование результата интеллектуальной деятельности или средства индивидуализации (в том числе их использование способами, предусмотренными ст.1270 ГК РФ: копирование, размножение, распространение, перепечатка, воспроизведение, иное использование любой информации с сайта – фотографий, 3D моделей, текстов, программного обеспечения, веб-страниц и пр.), дизайна, если такое использование осуществляется без согласия правообладателя, является незаконным и влечет гражданскую, административную и уголовную ответственность.